Plaza de Garaje Nº 21
Calle Tutor 32
28008 Madrid
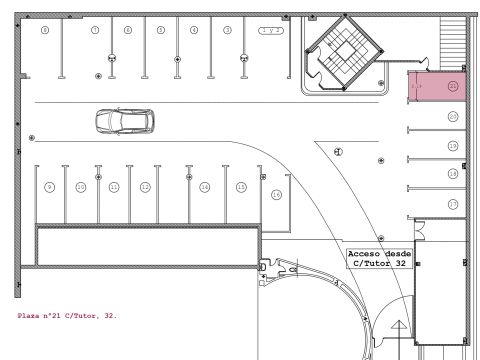
Plaza de aparcamiento nº 21, situada en el edificio Buen Suceso, con entrada por la calle Tutor, 32, de Madrid
Categoría: Pequeña
Superficie útil: 4,42m (Largo) x 2,19m (ancho)
Precio arrendamiento anual: 150,00€/mes + I.V.A.
Duración del contrato: 1 año
Plazo de presentación de la solicitud escrita en el Registro de Patrimonio Nacional: 15 días naturales a contar desde la fecha de su publicación.
En caso de concurrencia de ofertas, se abrirá un nuevo periodo de 8 días, para mejorar al alza la oferta presentada por los diferentes interesados.
Una vez transcurrido el plazo de los 15 días naturales sin recibir oferta para dicha plaza de aparcamiento se adjudicará a la primera solicitud recibida, por la renta base.
Departamento Jurídico de Bienes Inmuebles
Palacio Real de Madrid
d.juridicoinmuebles@patrimonionacional.es
Teléfono: 91 454 87 15


